Строительство под семейную ипотеку
Загородные дома для семейного отдыха
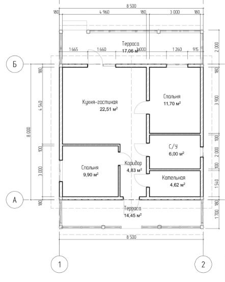
Дом из бруса 91,1 м² - обзор планировки и цены

Дом, который выбирают для комфортной жизни за городом.
Ничего лишнего - только пространство, логика и удобство.

Что внутри
▪️ 3 отдельные комнаты
▪️ совместный санузел
▪️ большая кухня-гостиная для семьи и гостей
▪️ продуманная планировка без «пустых» метров

Общая площадь дома - 91,1 м².
Такой формат отлично подойдёт для постоянного проживания или загородного дома выходного дня.

Если хотите такой дом или изменить планировку под себя - напишите нам.
Подскажем, посчитаем и сразу скажем, во сколько это выйдет.
Ссылка на объявление: https://sibdom124.ru/sale/salehouse/47899
6 500 000
Александр Васильев


Красноярский край, Березовский район, территория ДНТ Барвиха, улица Боровая

Информация об объекте

Вид объектаДом Тип продажиАльтернатива Площадь участка10 Площадь дома91.1 Материал стенДеревянный Год постройки2026 Количество этажей1 Количество спален2 СанузелВ доме ОтоплениеЭлектрическое ВодоснабжениеЕсть КанализацияЕсть ЭлектричествоЕсть