Строительство под семейную ипотеку
Загородные дома для семейного отдыха
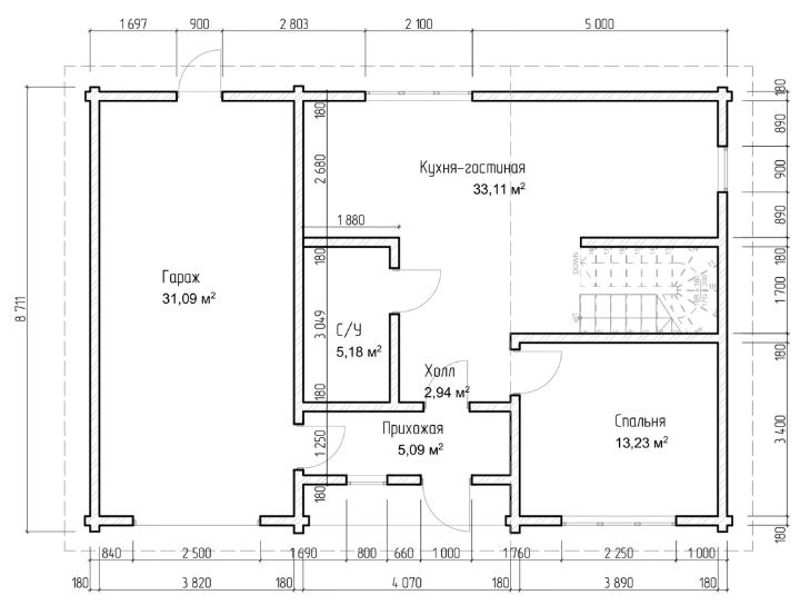
Дом из бруса 152 м² - обзор планировки и цены

Дом, который выбирают для комфортной жизни за городом.
Ничего лишнего - только пространство, логика и удобство.

Что внутри
▪️ 2 отдельные комнаты
▪️ совместный санузел
▪️ большая кухня-гостиная для семьи и гостей
▪️ продуманная планировка без «пустых» метров

Общая площадь дома - 152 м².
Такой формат отлично подойдёт для постоянного проживания или загородного дома выходного дня.

Если хотите такой дом или изменить планировку под себя - напишите нам.
Подскажем, посчитаем и сразу скажем, во сколько это выйдет.
Ссылка на объявление: https://sibdom124.ru/sale/salehouse/47900
8 500 000
Александр Васильев


Красноярский край, Красноярск, село Дрокино
redeemДанный объект можно приобрести в ипотеку

Информация об объекте

Вид объектаДом Тип продажиАльтернатива Площадь участка10 Площадь дома152 Материал стенДеревянный Количество этажей1 СанузелВ доме ОтоплениеЭлектрическое ВодоснабжениеЕсть ГаражЕсть КанализацияЕсть ЭлектричествоЕсть